Prefabricated Solutions for Hospitality Projects

At The Backcountry Hut Company, we recognize that exceptional guest experiences begin with thoughtful, intentional design. Our prefabricated cabin systems offer hospitality operators a refined, design-led solution that integrates functionality, aesthetic consistency, and operational flexibility. With a high level of design fidelity across our entire range of systems, we deliver a cohesive architectural language and uniform quality, regardless of project scale or location. Built for efficiency and impact, BHC delivers hospitality-ready building systems engineered to support projects of any scope with ease.

 


Key Benefits for Hospitality Operators

Rapid Assembly

Rapid assembly timelines get you up and hosting faster than traditional builds. Off-site fabrication eliminates weather and site delays. BHC kits are designed for quick on-site assembly, ensuring smooth execution even in remote or seasonal locations.


Repeatable

Minimize design time, maximize efficiency. Our repeatable kit-of-parts model saves time, money, and resources across builds. The reduced need for specialized on-site labour and clear assembly guides streamline the process from start to finish.


Dynamic Product Line

Easily manage a variety of guest experiences and nightly rates while maintaining a cohesive design aesthetic across all structures. Whether you're creating distinct offerings for couples, families, or groups, our systems allow for flexibility in layout and use.


Customizable Interior

Match your unique brand aesthetic or choose from our BHC Hospitality Interior Kits for a thoughtfully curated look. Either way, you maintain creative flexibility without compromising on budget or timeline control.

Architectural Aesthetics

The quality of coordination and material finishes in Backcountry Hut Company products provides an elevated experience, consistent with the expectations of discerning clientele. Every detail is considered, from precision in fabrication to the selection of premium materials.


Sustainable by Nature

Reduced site waste, minimal transport, and fewer custom materials lower your carbon footprint while increasing long-term value. By streamlining the construction process and prioritizing efficiency, BHC systems offer a more sustainable and environmentally responsible way to build.


Cost Certainty

Easily manage a variety of guest experiences and nightly rates while maintaining a cohesive design aesthetic across all structures. Whether you're creating distinct offerings for couples, families, or groups, our systems allow for flexibility in layout and use.


Minimal Disruption

A short construction window limits on-site noise and disruption, making it ideal for phased development or sensitive environments. This streamlined approach allows for smoother project coordination, reduced disturbance to surrounding areas, and greater overall efficiency.

Scalable Design

Whether you're deploying a single unit or developing a multi-unit retreat, our modular system adapts to your vision and scale. The BHC module and scalable configurations allow flexibility in design without the time and cost overruns typical of traditional builds.


Minimal Site Work

Our systems can be assembled on either a traditional foundation structure or on piles/piers, offering flexibility to suit a wide range of site conditions. This adaptability makes our builds suitable for everything from remote wilderness settings to more conventional residential lots.


Economies of Scale

Easily manage a variety of guest experiences and nightly rates while maintaining a cohesive design aesthetic across all structures. Whether you're creating distinct offerings for couples, families, or groups, our systems allow for flexibility in layout and use.


Certainty

Enjoy consistent quality, minimized risk, and fewer surprises throughout the build process—resulting in a smooth, efficient experience from start to finish. Our streamlined approach helps ensure projects stay on time, on budget, and aligned with your vision.


Looking for more information, such as whether BHC offers volume pricing for hospitality projects? Visit our FAQ page to learn more.

Ready to discuss your hospitality project with a member of our team?


Designed with Hospitality in Mind

Specialized versions of our systems designed for hospitality experiences.

System 01 H | 1 Module | Single-Storey

  • The System 01 H was designed specifically for hospitality. A more compact take on our original System 01, it’s built on a single ground-floor level to encourage fluidity between indoor living and outdoor recreation. Nearly three times the size of our System 00, it offers a full ensuite and kitchenette, making it an ideal solution for longer stays or guests seeking a fully self-contained unit.

  • • Sleeps 2-6

    • 309 SF

    • 2 Module

    • Full ensuite and kitchenette

    • Adaptable interior kit options

    • Ideal for STR operators, resorts, multi-unit properties

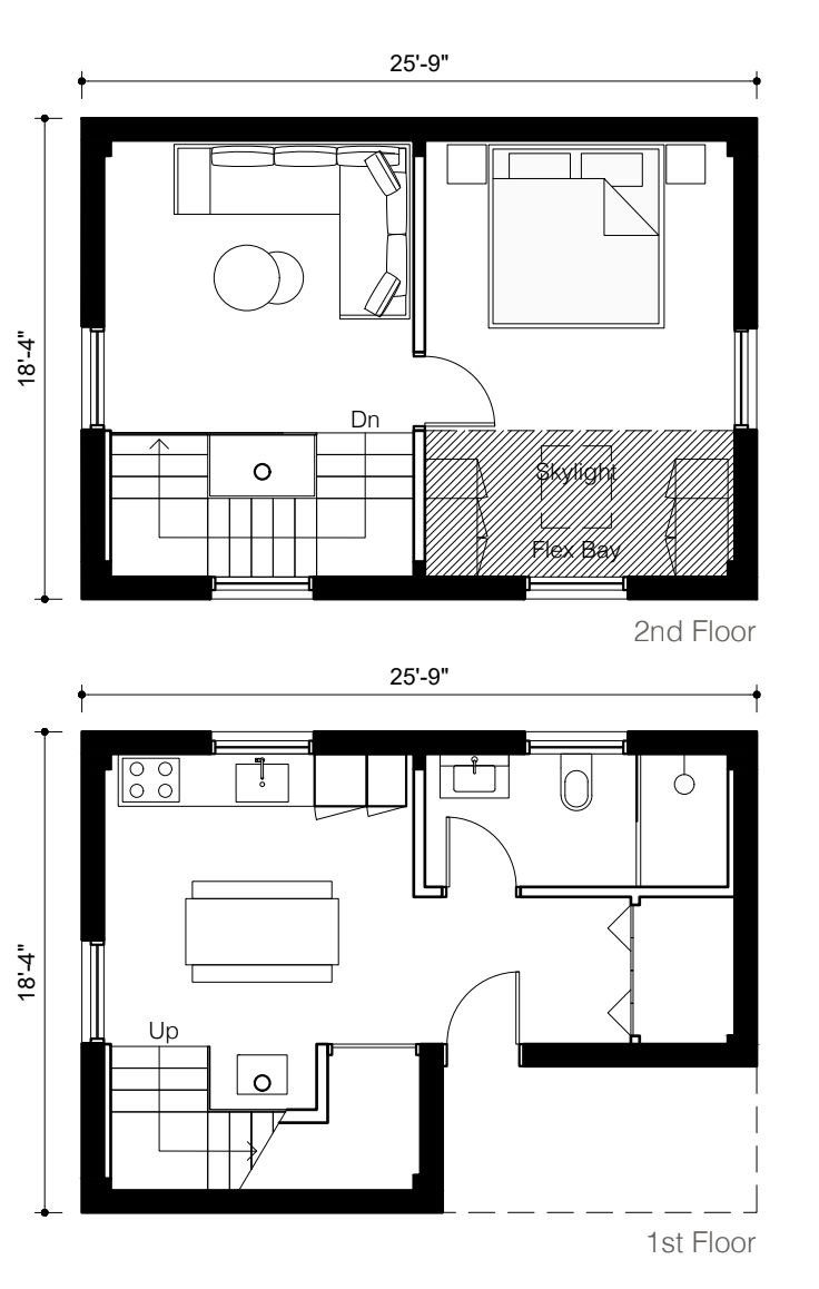
System 02 H | 2 Module | Two-Storey Cabin

  • The System 02 H is a two-storey prefabricated cabin ideal for hospitality developers seeking to maximize guest capacity with multiple bedrooms. Designed to withstand extreme weather and require minimal maintenance, it offers rugged durability built to last in harsh mountain and winter landscapes. Featuring a full ensuite and kitchenette, it’s perfect for comfortable, longer stays and seamless expansion as your project grows.

  • • Sleeps 2-6

    • 691 SF

    • 2 Module

    • Full ensuite and kitchenette

    • Adaptable interior kit options

    • Ideal for STR operators, resorts, multi-unit properties

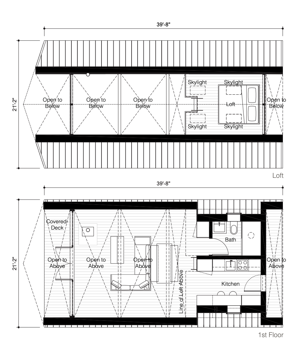
System 03 | Large A-Frame

  • The System 03 is our fully livable A-frame cabin for all-season living. With space to comfortably host a family of four or your premium suite. it’s perfect for high-end hospitality or elevated personal retreats. Its XL footprint and iconic form make it ideal for premium listings on platforms like VRBO.

  • • Sleeps 4

    • 503 SF

    • 2 Bedrooms or 1BR + Bunk Room Layout

    • Living Space, Kitchen, Bathroom

    • Premium Finishes

    • Flexible for Families or Higher Nightly

    Rate Offerings

    • Ideal for high-end STRs, premium stay experiences, boutique resorts